
Capriole Café by Bureau Fraai is the cloud nine of coffee shops! The main goal of the design of the café was to create a total experience of every aspect of the making AND consumption of coffee.
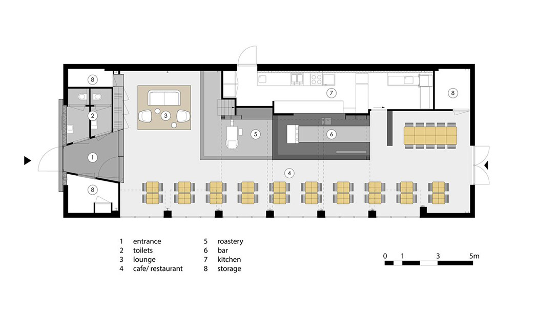
While the ground floor functions as a coffee roastery, coffee bar and restaurant, the first level contains a barista training center, a showroom, an office and a meeting room for Capriole Coffee Service. These two levels are visually connected by a central opening that features a striking black steel bar element, with the meeting room overseeing the restaurant.
The prefabricated interconnecting bar element is completely composed of heavy structural steel beams. It frames both the roastery downstairs and the barista training center upstairs. Tying this look together, the entrance containing the Capriole logo, the toilets, and wardrobe are completely composed of steel.
Designer: Bureau Fraai


















