
Costa Rica is widely celebrated as one of the most environmentally progressive countries in the world, pledging in 2015 to become a carbon-neutral country by 2021. Naturally, in order to uphold that pledge, Úbáli Tropical Living, a Costa Rican architecture firm committed to sustainable hotel tourism, designs eco-friendly modular cabins for various terrains that have been conceived and constructed in order to decrease carbon footprints typically caused by tourism.
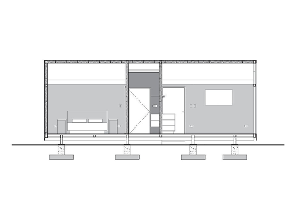
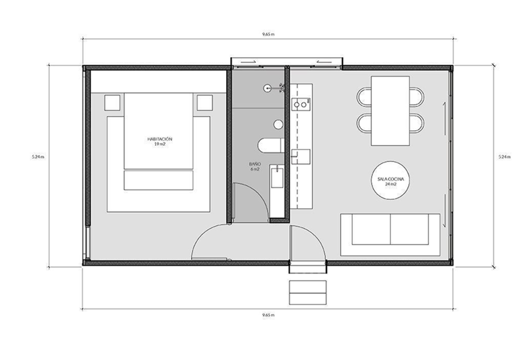
Úbáli, which means chameleon in Bribri, designed their first modular cabin, called Kabëk, specifically to befit mountain living. The first model for the Úbáli Tropical Living’s eco-tourism initiative dons an inclined roof, which allows the modular house to tuck right into mountainous terrains and offers travelers the chance to fully immerse themselves and their stays in the quiet of the wood. The modular cabin has a simple design layout of four walls that enclose a bedroom, living room, kitchen, bathroom, and dining room. The construction process also promotes frugality in regard to both time and money in that its modularity and simple layout caters to the prospect of easy and relatively affordable replication. Prepared for the most extreme of climates, Kabëk is assembled using industrial zinc, an extremely durable material that reforms nicks and blemishes thanks to its own hydroxyl carbonate protective layer. Additionally, industrial zinc’s levels of low toxicity are ideal for modular homes situated in natural settings. Industrial zinc is recyclable, durable, and an eco-conscious option for roofs. For example, rainwater that flows off Kabëk’s roof does not collect any hazardous waste on its way to the ground’s soil. Kabëk’s transportability is inherently green as the construction process preserves the natural settings on which Kabëk is situated. Furthermore, the materials used to build the modular home – industrial zinc, gypsum, and Densglass – form an ecologically sound structure that can withstand irregular changes in weather.
Once buyers attain land and construction permits, the building process takes just about two months to reach completion. In addition to the environmentally sustainable qualities and money-conscious design concept, Kabëk comes with installed septic tanks and the properly outfitted facilities needed for longer stays. The home is equipped with essential lifestyle products and tools in order to maintain convenience for a trip that otherwise brings you one on one with the mountain’s bare, albeit restorative, necessities.
Designers: Pablo Esteban Valle and Arthur Micheron x Úbáli Tropical Living






























