
The Danish word Hygge refers to a quality of coziness and comfort that comes from embracing life’s quieter pleasures either with oneself or loved ones. Hygge, typically used to regard architecture and interior design, might be so popular because it gently pulls us away from the smartphone if only for an evening to remind us of what’s truly important. Building on their own interpretation of cozy, Grandio, an architecture firm based in Córdoba, Argentina, recently launched a prefabricated concrete home called Hüga inspired by hygge living.
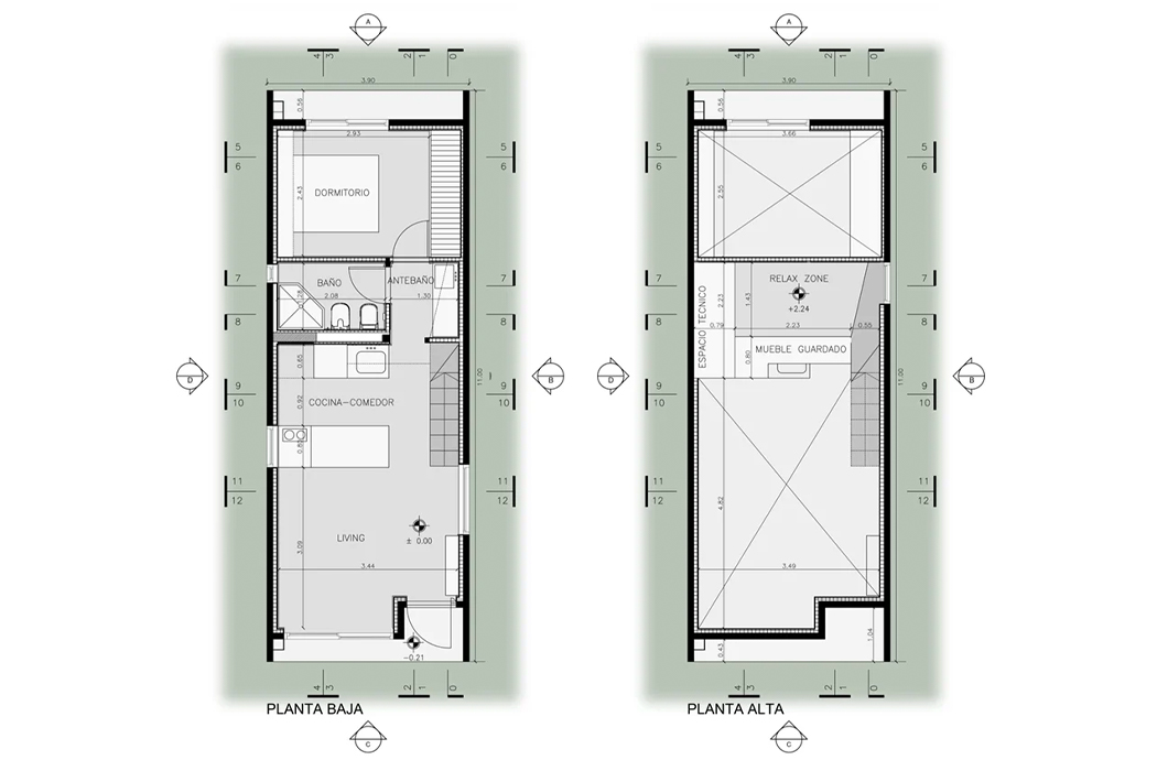
Hüga was conceptualized, designed, and built over a span of 24 months, during which Grandio’s team of designers were able to produce a 45 m2 residence with space for a bedroom, living room, bathroom, kitchen, and dining area. In order to ensure that Hüga could be transported anywhere and installed on-site, the team at Grandio developed a system of lightweight polymer molds to build the home’s “structural shell” so that it can ultimately be reinforced with concrete and maintain its form. Weighing about 55-Tn, Hüga requires a team and machinery for transportation but can be placed according to the prospective resident’s preference.
Inside the house, Grandio outfitted the interiors with materials and means for energy that provides, “the greatest comfort, habitability, and the lowest energy consumption.” Residents of Hüga only have to connect electricity, water power, and sewer systems, but speaking to the means for power, the team at Grandio was certain to pre-certify the home to meet Leeds standards and promote sustainable building tools and materials, as well as energy practices and performance. Residents are free to decorate the inside of Hüga however they choose and rest assured that their new home embraces both smart performance and green energy for convenient, supportive living. The final result is a home that is both bulletproof and weatherproof, with its minimal exteriors hiding a spacious and well-lit interior space.
Hygge has resonated with many of us in the past few years for the reason that it encourages us to veer away from our “plugged-in” norm. Most of us are constantly interacting with so much work-related stuff we forget that there’s a world beyond the calendar. In constructing Hüga, Grandio aimed to shift the public’s gaze from grandiose and ostentatious design as a means to demonstrate wealth to a more modest lifestyle that prioritizes the naturally attainable pleasures of quiet living.
Designer: Grandio



















