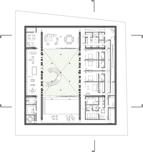
Plot #35 of the Ordos Project is not your typical villa. You won’t find it in Spain, France, or Italy. This one is in Inner Mongolia. The flat landscape is known for some of the most amazing blue skies on Earth but living there is harsh with high winds and extreme temperature grades.
Architect Juan Pablo Maza created a large underground home to take advantage of the ground’s natural insulation but the most striking feature is the suspended living area above ground surrounded by a forest of beams. A single stairway twists its way up making even the Apple Cube store in NYC seem complacent. Absolutely gorgeous.
Designer: Juan Pablo Maza via Arch Daily




