
Friends Lab House is a prefabricated, single-story barn-style residence located in the grassy fields of a family-run farm in Hampshire, England.
On the hunt for a home to share with friends and family while spending time on their farm in the English countryside, a young couple looked to AMPS Arquitectura & Diseño to design and build a sustainable, single-story farmhouse. When it comes to sustainability, AMPS architects consider it a top priority.
Designers: AMPS Arquitectura & Diseño


The young couple who reached out to AMPS found that they were on the same page in that regard, leading to a match made in barn-style heaven. Dubbed Friends Lab House, the traditional single-story farmhouse reveals a contemporary flair through energy-efficient principles and artisan details.


Especially true in the wide-open countryside of Hampshire, England, new architecture must blend into its surroundings and that was one of the Friend Labs House’s residents’ main requests. In addition to building an expansive, sustainable home, AMPS ensured the residence would harmonize with its surroundings by mirroring the look of the farm’s other homes.


The Friends Lab House finds its veil with permeable black-stained Accoya timber batten screen cladding that hearkens back to the other blackened timber structures around the property. Just beyond the Friends Lab House, dense woodlands run parallel with the lengthy home, a subtle ode to the home’s sweeping surroundings.


Describing the home’s initial plans, AMPS founder Alberto Marcos says, “A similar formal and color approach to the existing farm was used for the design of the new house, but reinterpreted in a thoroughly contemporary way, from structure to finishes and importantly, a very high level of energy efficiency.”


Characterized as “a house designed to sit silently on the landscape,” AMPS outfitted the Friends Lab House with all of the energy-efficient specs needed for a self-sufficient home. During the home’s prefabricated and industrialized construction process, CLT or contra-laminated timber panels were used to equip the home with strength and dimensional stability.


Punctuating the home’s semi-double-pitched roof, AMPS also set up photovoltaic panels for sustainable energy production throughout the year and changing seasons. In addition to the home’s green construction process and solar-paneled roof, AMPS integrated a ground-source heat pump and a borehole connected to a treatment plant to supply water.


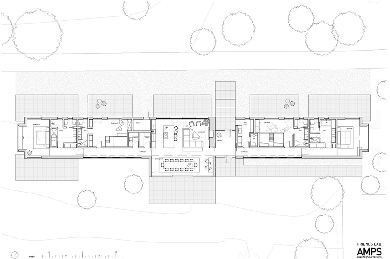
Towards the center of the residence, the living room finds half-bay overhangs and windows that open up completely to the south-facing grassy fields. In direct contrast to the home’s sleek black exterior, the home’s interior combines limestone and lime-based mineral micro-mortar (MORTEX) floors with chestnut paneled and MORTEX walls. While the home’s spacious personality is contained to one level, the double-pitched roofs and high ceilings give the home a lofty, airy feeling.


