
You know that feeling when you stumble upon a neighborhood that just gets it right? Where every corner feels designed for actual humans instead of maximizing square footage? That’s exactly what Architectkidd has created with My Front Yard in Phuket, and it’s making me rethink everything I thought I knew about retail spaces.
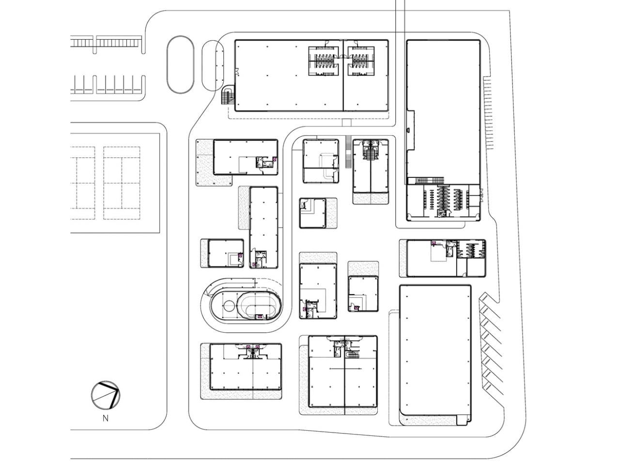
Here’s the thing: most shopping centers feel like they were designed by people who have never actually enjoyed walking through one. You get those massive, soul-sucking boxes where the only outdoor space is the parking lot. But My Front Yard flips that script entirely. Located against a hillside in Phuket, this project ditches the big box approach for something that feels more like wandering through a well-planned village than a commercial development.
Designer Name: Architectkidd


The concept is refreshingly simple yet radical in today’s retail landscape. Instead of cramming everything under one massive roof, Architectkidd broke the space into a cluster of low-rise pavilions scattered across the site. These aren’t just random buildings, they’re connected by open-air walkways and communal spaces that actually make you want to slow down and explore. It’s retail therapy in the most literal sense.


What makes this design so clever is how it taps into the rhythms of everyday life. The outdoor pathways aren’t just pretty, they’re designed for morning walks, exercise stops, daily jogs, and yes, even bringing your pet along. The space becomes part of your routine rather than a destination you have to psychologically prepare for. It’s the kind of place where grabbing coffee or browsing shops becomes a pleasant addition to your day instead of a task to endure.


The architectural language ties everything together without feeling monotonous. Each pavilion maintains its own identity while contributing to a cohesive whole, creating what Architectkidd calls “micro-communities” within the larger development. It’s a subtle but important distinction. You’re not navigating a monolith, you’re discovering pockets of activity that each have their own character and purpose.


This approach represents a fundamental shift in how we think about commercial spaces. The goal wasn’t just to create another place to shop, it was to build a landscape where community happens organically. Success here isn’t measured in transactions per square foot but in how naturally people integrate the space into their lives. Can you pop by for a quick errand? Absolutely. But you can also spend an afternoon wandering, meeting friends, or just enjoying being outside in a thoughtfully designed environment.


The timing of this project feels particularly relevant. We’ve spent years watching retail struggle to compete with online shopping, and the answer often seemed to be making physical stores more experiential. But My Front Yard suggests a different solution: make the entire environment worth experiencing. When the journey between shops is as pleasant as what’s inside them, you’re creating value that Amazon can’t replicate.


Phuket’s climate makes this open-air concept especially practical, but the philosophy behind it could translate to countless other contexts. We’re seeing a broader movement in architecture and urban planning that prioritizes human-scale development, pedestrian-friendly design, and spaces that encourage spontaneous interaction. My Front Yard isn’t just riding that wave, it’s showing how those principles can work in a commercial setting without sacrificing functionality.


There’s also something refreshing about design that doesn’t shout for attention. The pavilions and walkways create an experience without overwhelming you. It’s confident enough to be understated, trusting that good bones and thoughtful planning will be their own draw. In an era of Instagram-bait architecture, that restraint feels almost rebellious.

Looking at projects like My Front Yard makes me hopeful about the future of retail and public space generally. We don’t have to choose between commercial viability and human-centered design. We can create places that serve both purposes, spaces that support businesses while genuinely improving daily life for the people who use them. Sometimes the most innovative thing you can do is remember what made neighborhoods work in the first place, then apply that wisdom with contemporary tools and fresh eyes.
