This house made of wood, straw, and cork is a great example of modern, sustainable architectural design!

Somewhere on the outskirts of a small village in Italy, a couple of computer scientists call a simple farmhouse, built from wood, straw, and cork, home. Before either of us get any ideas, this isn’t a modern take on “The Three Little Pigs.” LCA Architetti, an architecture firm based in Milan, has finished work on The House of Wood, Straw, and Cork– a farmhouse-style home fittingly named for being primarily constructed from wood, straw, and cork.

The two-story farmhouse has a prefabricated timber structure that reflects the style of neighboring farmhouses and barns located in the immediate area. Blending with the surrounding countryside, The House of Wood, Straw, and Cork dons a grainy exterior with cladding formed from cork, a type of insulating material harvested from the bark of cork oak trees. The home is further insulated through the use of straw, which is traditionally used as an insulator for other rural dwellings like barns and henhouses. The straw insulation consists of repurposed discarded rice plants handed over by nearby farmers in the area.

Sustainability was a top priority in constructing The House of Wood, Straw, and Cork, and the house’s commitment to energy-efficiency is exhibited through the recycled material used for insulation, as well as the cluster of solar panels found on the home’s roof. Coupling the use of recycled straw and cork for insulation with photovoltaics for solar energy, The House of Wood, Straw, and Cork stands as a self-powered home, decreasing the overall consumption of energy and emissions of greenhouse gases like CO2.

The House of Wood, Straw, and Cork was built for a young couple of computer scientists who longed to work closer to nature and live a more sustainable lifestyle. To find harmony with the natural surroundings of Magnago, Italy, The House of Wood, Straw, and Cork is a sustainable house characterized by simple architecture. Everything from the materials used for construction to the chosen methods of insulation is dedicated to preserving the home’s natural surroundings.

Designer: LCA Architetti

The combination of straw insulation and cork cladding works to keep The House of Wood, Straw, and Cork both warm and eco-friendly.

Cork is a naturally durable, recyclable, and insulation construction material.

On one side of The House of Wood, Straw, and Cork a large, glass-paned window merge into the roof to provide additional skylight inside.

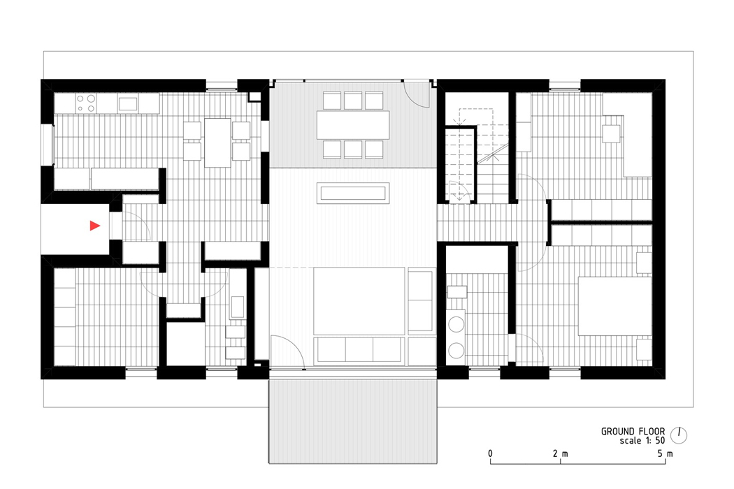
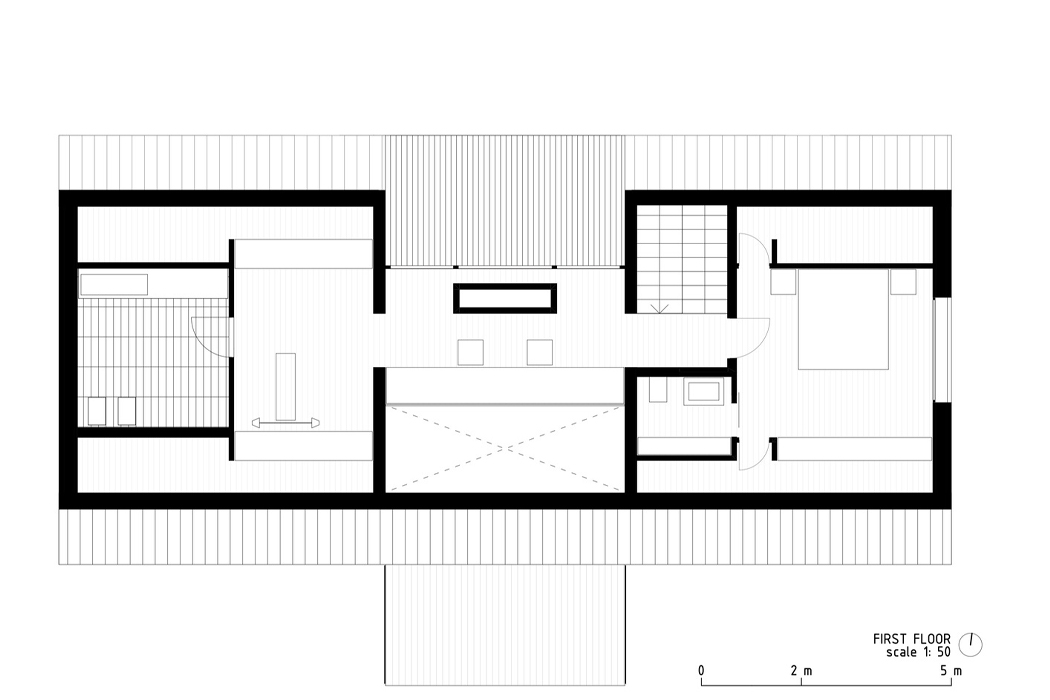
The two-story home features a living room at its center with high ceilings and an unobstructed view of the surrounding countryside.

Inside, a calming mix of natural smoothed over wood and cooled down stone walls enhance the home’s simple design.

Chromatic shading flows throughout the house, allowing for sharp angles to bring out the darker and brighter shades from the natural wood accents.