
I have said it before and I will say it again – tiny houses are the future of urban living. It is not a cute trend, it is a movement that will allow millennials and future generations to become homeowners as they battle the second economic crisis and a climate crisis – all before they are 30! Owning homes should not be a luxury or take up a whole paycheck and that is exactly what tiny homes like Nestron’s Cube Two allow you to do. You don’t have to sacrifice good design if you are already compromising on space.
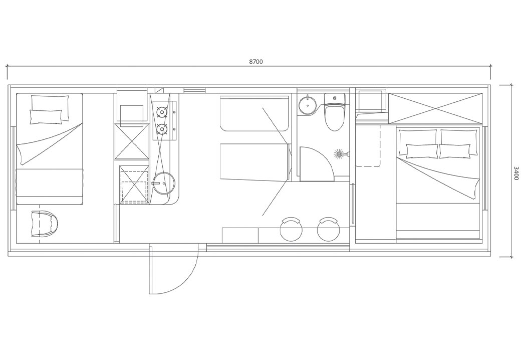
Cube Two is a 263-square-foot home that is designed for the future and smart living. This modern compact home is a prefabricated structure that already comes fitted with the latest home appliances that can all be controlled by an AI assistant named Canny. The exterior has smooth curved corners that give it a friendly vibe and the interior offers enough space for a family of four to live comfortably with two bedrooms and an open living area. To make it feel roomier, there is a skylight that runs across the ceiling and floods the space with natural light and also provides a wonderful frame of the night sky. “The open concept increases the usable area by 15%, compared to a traditional house and is perfect for medium-sized households,” says the team.
The minimal interiors will resonate with all the modern homes you’ve seen with an elegant black and white theme. Tiny homes usually have cramped kitchens but the one in Cube Two really changes that with thoughtful design details, especially the bar counter! The sleek setup is completely ready for you to move in the day your house arrives, just unpack and plug in! Take their virtual 360° tour here. Tiny prefab homes also let you build communities anywhere eg. it can help mitigate issues that arise when climate change causes dislocation, provide refugees with better camps, or even set up housing for researchers who have to stay in remote locations. Small house, big potential!
Designer: Nestron








