The world’s health systems are feeling immense pressure to catch up with Covid-19’s reach and speed. With over 400,000 worldwide cases (and still growing), the contagion is spreading so rapidly that health professionals are worried because facilities are already overflowing. We have already seen many countries like Italy, Spain, and China treating people in corridors, makeshift tents, and on streets by simply laying a sheet because beds are not available. The global community, from designers and startups to big fashion and alcohol brands, has been helping out by using all their resources to support the health system. Italian start-up Isinnova has 3D printed valves for ventilators, New York start-up Air Co. is making carbon-negative hand sanitizers to donate, Kering (Gucci’s parent company) and beer maker BrewDog have offered money and production lines to make items needed for the pandemic. The most important need of the hour, apart from the hope of a vaccine, are hospital beds and especially ICUs. The supply is nowhere close to the demand – the USA has 2.8 beds per 1000 people, while a country like India with a population of 1.3 billion only has 0.5 beds per 1000 people. Because there is no international standard for how many beds a country must have in hospitals, there is a huge disparity and despite Italy having 3.2 beds per 1000 people, which is more than India and the USA, it is still grappling with the reality of only treating those with a higher survival rate due to the lack of resources. These heroes are doing everything they can but due to the absence of adequate infrastructure, their efforts to contain the spread can quickly become futile if the space used is unhygienic, so Italian architects Carlo Ratti and Italo Rota have come up with a solution – Intensive Critical Unit (ICU) pods made from shipping containers!
These ICU pods are called CURA (Connected Units for Respiratory Ailments) which means “cure” in Latin (doesn’t that make you feel a little better?) and these will help take some load off the hospitals, especially in Italy. Ratti’s Studio, Carlo Ratti Associati, and MIT’s Senseable City Lab are creating mobile field hospitals with these CURA Intensive Care pods that serve as a biocontainment unit for two patients at a time. “The aim is that they can be quickly deployed in cities around the world, promptly responding to the shortage of ICU space in hospitals and the spread of the disease,” explained the CURA team as they build the first prototype unit at a hospital in Milan. These units can be set up as fast as tents with the benefit of having hospital-level hygiene which will help contain the infection and especially help those suffering from acute respiratory problems as they need intense care. This will also ensure that the health professionals remain safe while treating the infected who will have a better chance at recovery in the biocontainment units. “Whatever the evolution of this pandemic, it is expected that more ICUs will be needed internationally in the next few months,” says a spokesperson from the CURA team.
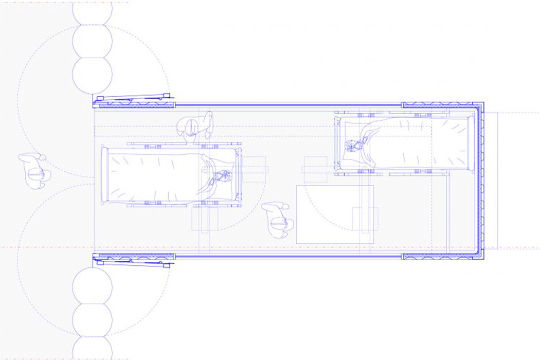
The pods can be assembled and disassembled very quickly, and because it is a shipping container, it can be moved from epicenter to epicenter by road, rail, and ship, around the world to address the need for more ICUs. The units are designed in repurposed 6.1-meter-long (approximately 8 feet x 8.5 feet) shipping containers with a ventilation system that generates negative pressure inside – this prevents the contaminated air from escaping thus reducing the risk of infecting health professionals who are more vulnerable because of a shortage of protective gear. This is a common technique used in hospitals and laboratories and the designers have created CURA to comply with Airborne Infection Isolation Rooms (AIIRs) standards. Each of the ICU pods will have all the medical equipment needed to support two coronavirus Covid-19 intensive-care patients at a time. The beautiful part about CURA is that it is modular – each pod could work as a stand-alone unit or multiple pods can be connected with an inflatable structure to create a bigger intensive care center. These were designed keeping in mind that they would be an expansion to existing hospitals by being set-up in their parking area but have the flexibility to be turned into a larger field hospital if needed. “CURA aims to improve the efficiency of existing solutions in the design of field hospitals, tailoring them to the current pandemic,” explained the team who are working hard to do their bit as non-health professionals in supporting those at the frontline of this outbreak.
While we can’t match the contribution of health professionals, the world needs every single person to play their part right now – designers, engineers, creative professionals, manufacturers, start-ups, brands are all called upon to offer any and every service they can to help ease the ache mankind is feeling. And if you don’t have anything to offer, you still have an equally powerful role to play in breaking the exponential transmission chain by simply staying indoors. Let’s flatten the curve, Avengers assemble…in your homes!
Designers: Carlo Ratti Associati with Italo Rota (Design and Innovation), Massachusetts Institute of Technology (Design and Innovation), Humanitas Research Hospital (Medical Engineering), Policlinico di Milano (Medical Consultancy), Jacobs (Alberto Riva – Master Planning, design, construction and logistics support services), Studio FM Milano (Visual identity & graphic design), Squint/Opera (Digital media), Alex Neame of Team Rubicon UK (Logistics), Ivan Pavanello of Projema (MEP Engineering), Dr. Maurizio Lanfranco of Ospedale Cottolengo (Medical Consultancy).









