
Per Bornstein’s House Hökarn emerges from its elevated meadow setting like a natural extension of the surrounding oak forests in Floda, Sweden. The minimalist design language creates a residence that functions as both a home and a retreat. The architect’s approach strips away unnecessary complexity, allowing the building’s fundamental elements to define the living experience. The dwelling’s positioning on the meadow maximizes both privacy and connection to the landscape, creating a sanctuary that feels both grounded and elevated.
The materials used convey a deep understanding of Swedish building traditions while adopting contemporary minimalist principles. Lime plaster coating the load-bearing walls creates a tactile surface that ages gracefully and responds to changing light conditions throughout the day. Pine timber planks line the interior spaces, providing warmth and acoustic comfort while maintaining the visual continuity essential to minimal design. The integration of concrete and steel elements adds structural precision without compromising the overall sense of material authenticity.
Designer: Per Bornstein


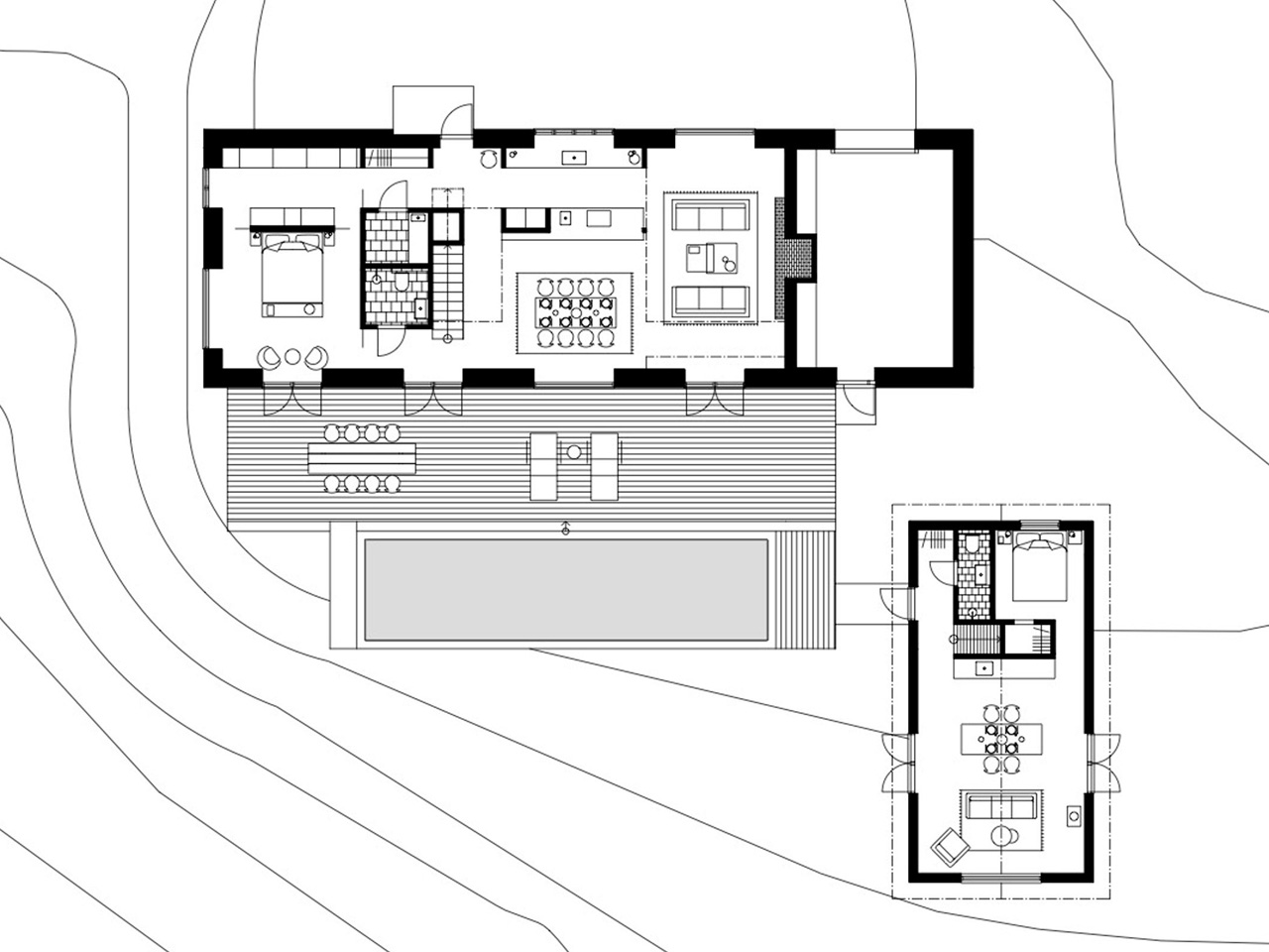
The architectural composition balances openness with protection, creating spaces that feel both expansive and intimate. The floor plan allows for natural light penetration and cross-ventilation, fundamental requirements for comfortable year-round living in the Swedish climate. Interior spaces flow seamlessly into one another, avoiding the compartmentalization that can make compact homes feel cramped. The strategic placement of windows frames specific views of the surrounding forest, turning the landscape into a living artwork that changes with the seasons.
The guest house uses reclaimed materials, proving how they can enhance architectural quality. The secondary structure extends the main house’s material language while establishing its own distinct identity within the forest clearing. The relationship between the two buildings creates a compound that accommodates both solitary retreat and social gathering, essential functions for a family residence. The guest house’s positioning offers privacy for both structures while maintaining a visual connection across the meadow landscape.


The project’s extended development timeline reflects the careful consideration required for architecture that aims to achieve timeless quality rather than trendy appeal. The initial conception in 2019 has evolved through multiple iterations, allowing the design to respond to both client needs and site conditions. The recent completion showcases patient design processes can yield architecture that feels both inevitable and surprising. The long gestation period has resulted in a building that appears to have grown from its site rather than being imposed upon it.
House Hökarn establishes a new benchmark for minimal residential architecture in Sweden, making it clear to us that restraint can generate richness rather than limitation. The home’s success lies in its ability to feel both contemporary and timeless, avoiding the stylistic gestures that can date architecture prematurely. The dwelling functions as a case study of how careful material selection and spatial planning can create homes that enhance rather than compete with their natural settings.



