Designer Kimsungi has done it! Finally, my very own lift-me-up system I can roll around myself! This is one of those things I wish for but don’t really expect to reach fruition. The video below shows it in perfect clarity- a few clicks, openings, and closings, and you’ve turned what appeared to be a giant rolling suitcase into your very own lifting work stand!
Get super high on this. Sungi added the brand WORX because it seemed like a rather good fit. I’m sure if you’re a manufacturer of muscle tools like this and would like to have it produced by you instead, you could ask Kim and it wouldn’t be too much of a stretch.
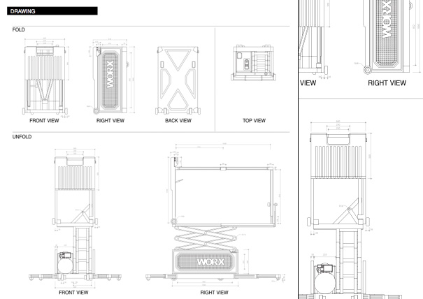
Check out the easy to access plugs: electricity and air- very helpful if you’re using one of those fantastic air-nailers. Love em. Simple-to-use controller accessible by the person being lifted, move back and forth, up and down. Rubber flooring, uneven surface for non-falling action.
Made for simple packing, movement, and help in the works.
I want one! Don’t even do construction work anymore and I’d be apt to purchase.
BONUS: see below for an awesome photo of Kim and a 1/2 scale final mock-up!
Designer: Sungi Kim





