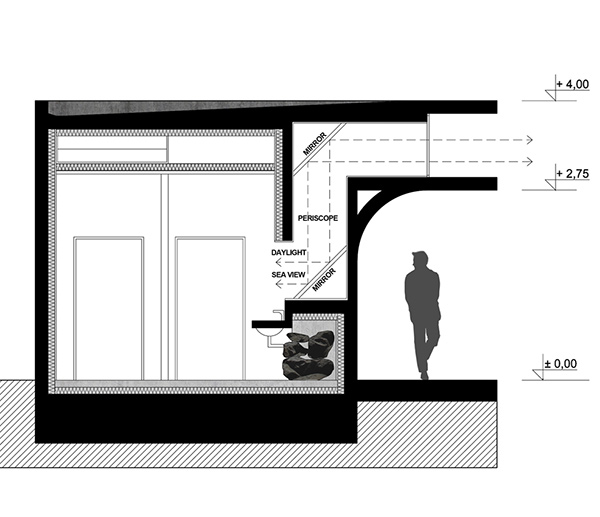
The “Seaside Periscope” just goes to show that even a restroom, yes… a restroom, can be an architectural masterpiece! Set in Gydnia, overlooking the Baltic Sea, the design’s key feature is a system of large mirrors that work like a periscope to give people inside a view of the sea so that even while they are doing their business they can enjoy the scenery! The monolithic concrete structure owes its shape to this unique function, but also blends with the local landscape with its curved top section which houses the mirrors and mimics the breakwater.
Designer: Adam Wiercinski









